Nowy Sącz: Rusza modernizacja sieci ciepłowniczej na os. Wojska Polskiego
18 marca 2021 r. w siedzibie MPEC Nowy Sącz została podpisana umowa na wykonanie zadania pn.: „Modernizacja sieci ciepłowniczej w MPEC Nowy Sącz – etap 2”.
Wykonawcą inwestycji została firma OTECH Sp. z o.o. w Gorlicach, reprezentowana przez Wiceprezesa Arkadiusza Pamułę oraz Wiceprezesa Dominika Wojtasa, ze strony MPEC umowę podpisali Prezes Paweł Kupczak oraz Wiceprezes Andrzej Brzeziński, podczas podpisania umowy był obecny także Prezydent Ludomir Handzel.
To modernizacja ponad kilometrowej sieci ciepłowniczej. Inwestycje trwają od 2020 roku, czyli modernizacji sieci ciepłowniczej na Osiedlu Westerplatte. Rozwijamy ciepło systemowe. To redukcja kosztów i zanieczyszczenia powietrza o 99 procent. Walczymy o czyste powietrze w Nowym Sączu – powiedział prezydent.
W 2020 roku zmodernizowaliśmy lub wybudowaliśmy prawie 7 kilometrów sieci ciepłowniczych. Udało nam się wybudować kocioł biomasowy. W planach mamy inwestycję związaną z silnikami kogeneracyjnymi. Będzie to kolejne źródło ciepła oraz produkcja energii elektrycznej. Oznacza to, że MPEC stanie się elektro-ciepłownią – mówił Paweł Kupczak, prezes MPEC.
Termin realizacji prac ziemnych: do 3 września 2021 r.
- Całkowita wartość projektu: 3 772 570 PLN
- Wartość wydatków kwalifikowanych: 3 017 130 PLN
- Wartość dofinansowania: 2 564 561 PLN (85%)
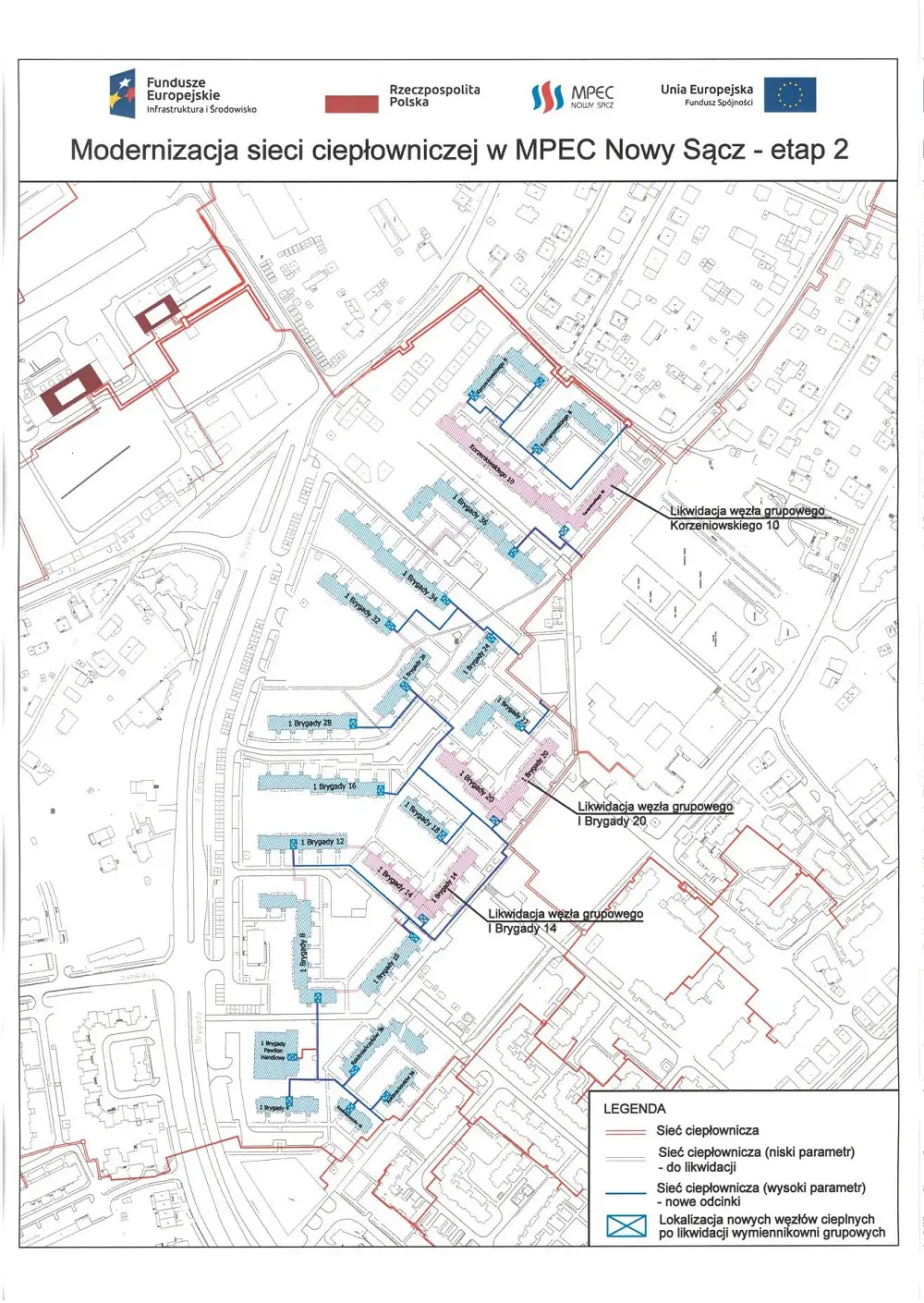
Inwestycja obejmuje:
- prace na terenie os. Wojska Polskiego,
- wymianę 1247metrów rur ciepłowniczych mających 40 lat i grożących awariami,
- likwidację 3 wymiennikowni grupowych: I Brygady 14, I Brygady 20, Korzeniowskiego 10,
- wbudowanie 23 nowoczesnych węzłów dwufunkcyjnych,
- montaż systemu monitoringu pracy węzłów cieplnych.
Korzyści z inwestycji:
- pełna automatyka pogodowa pozwoli zmniejszyć zużycie ciepła przez odbiorców i zapewni oszczędności,
- ograniczenie występowania ubytków wody sieciowej,
- zwiększenie efektywności energetycznej systemu ciepłowniczego, dzięki ograniczeniu strat na przesyle ciepła poprzez zastosowanie rurociągów preizolowanych w miejsce sieci tradycyjnych,
- zmniejszenie zużycia ilości paliwa do produkcji ciepła co bezpośrednio wpłynie na ograniczenie emisji do środowiska.

Źródło: MPEC, UMNS
Komentarze